Este site utiliza cookies para permitir a mudança de língua e o armazenamento dos seus imóveis favoritos. Ao utilizar este site, concorda que o mesmo utilize cookies.

Moradia T3 Térrea Geminada de 3 frentes – Travanca, Santa Maria da Feira

415.000€



Referência

cf0440LT3

Natureza

Venda

Tipo de Imóvel

Moradia

Subtipo de Imóvel

Moradia Geminada

Tipologia

T3

Estado

Novo

Certificado energético

A

Ano

2025


Distrito

Aveiro

Concelho

Santa Maria da Feira

Freguesia

Santa Maria da Feira, Travanca, Sanfins e Espargo

Código Postal

4520


Área Útil

110.1 m2

Área Bruta

161.8 m2

Área de Terreno

343 m2

Partilhar




Contactar Imobiliária

*Preenchimento obrigatório
Ao clicar em 'Enviar', declara que aceita a nossa Política de Privacidade.
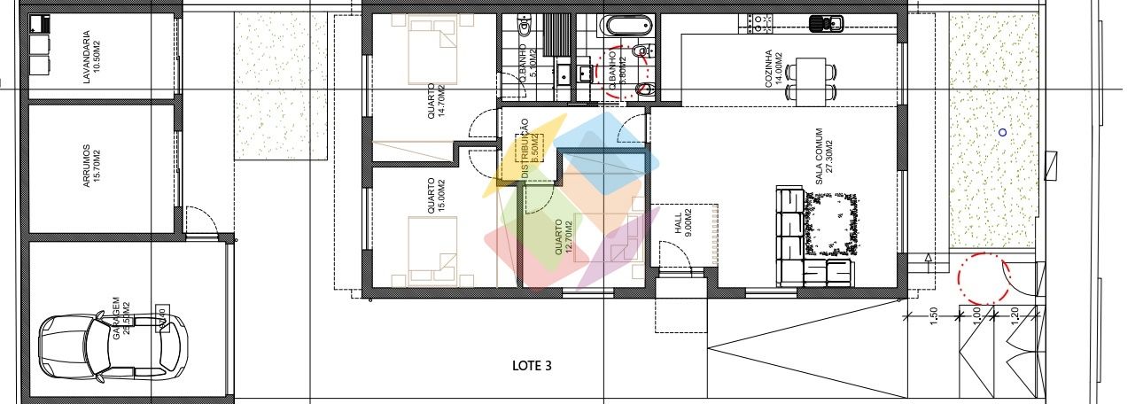
Se procura conforto, modernidade e qualidade, esta moradia térrea T3 de três frentes, inserida num lote de 343 m², é o investimento certo para si.

Com linhas modernas e materiais de elevada qualidade, foi pensada para oferecer muita luminosidade e o máximo de bem-estar e funcionalidade.

Localizada numa zona tranquila de moradias em Travanca, Santa Maria da Feira, a poucos minutos do centro da cidade, conjuga sossego e conveniência.

A moradia encontra-se em fase inicial de construção, com conclusão prevista para o início de 2027, permitindo-lhe acompanhar o processo de construção e de personalizar alguns detalhes.

Principais características:
• Hall de entrada acolhedor;
• Sala e cozinha em open space, com acesso direto ao jardim;
• Suíte e dois quartos com roupeiros embutidos e acesso direto ao logradouro exterior;
• Casa de banho completa;
• Excelentes acabamentos e luminosidade natural;

Exterior:
• Excelente zona de jardim na frente e nas traseiras e espaçoso logradouro para poder aproveitar as suas festas de amigos e de lazer;
• Garagem fechada, lavandaria e arrumos;

Um lar moderno, funcional e preparado para oferecer a qualidade de vida que merece.

Equipamentos:
• Equipamentos de cozinha (placa de indução, forno, chaminé de exaustão, micro-ondas, frigorífico combinado e máquina de louça) marca Bosh;
• Vídeo porteiro;
• Caixilharia em Alumínio com corte térmico, cor antracite mate;
• Vidro duplo com caixa de ar e proteção solar;
• Estores elétricos com comando à distância e wi-fi, na cor antracite mate;
• Ar condicionado Proteu c/Wi-Fi;
• Focos Led embutidos em toda a casa;
• Focos embutidos no muro do logradouro exterior;
• Carpintaria em madeira Sucupira;
• Portas interiores até ao teto;
• Paredes exteriores com isolamento em capoto de 8cm, revestidas de cor branca e cinza;
• Revestimento do piso em vinil na cor carvalho vintage;
• Louças suspensas nas casas de banho marca Sanitana;
• Móveis suspensos com espelho nas casas de banho;
• Bomba de calor Proteu 300 litros;
• Torneiras marca Grohe;
• Portas e janelas de correr em alumínio de cor cinza antracite mate;
• Portão de garagem com motor elétrico, comando à distância e acabamento de cor cinza antracite;
• Portão da rua da garagem com comando à distância na cor cinza antracite mate;
• Portão de entrada a pé em alumínio de cor cinza antracite mate;
• Garagem – Pré-instalação para carregamento de carros eléctricos;

Aproveite, não perca a oportunidade marque já visita!!!

Quanto ao financiamento, reforçamos que somos intermediários de Crédito Habitação autorizados pelo Banco de Portugal, desta forma e para sua maior comodidade, podemos ajudá-lo ao longo de todo o processo até a escritura.

AMI 10354
Geral
GeraisMobilado:Sim
GeraisNº de Casas de Banho:2
GeraisLavandaria:Sim
GeraisSuite:Sim
ClimatizaçãoAr condicionado:Sim
ClimatizaçãoBomba de calor:Sim
CaixilhariaTermolacada:Sim
CaixilhariaVidro Duplo:Sim
CaixilhariaEstores:Sim
VistasCampo:Sim
VistasJardins:Sim
VistasPanorâmicas:Sim
VistasRio:Sim
VistasSerra:Sim
Exposição SolarNascente:Sim
Exposição SolarNorte:Sim
Exposição SolarPoente:Sim
Luz NaturalMuito Iluminado:Sim
Ar CondicionadoCompleto:Sim
GaragemFechada Exterior:Sim
CozinhaMóveis lacado:Sim
CozinhaCerâmica:Sim
CozinhaPlaca:Sim
CozinhaForno:Sim
CozinhaExaustor:Sim
CozinhaMicro-ondas:Sim
CozinhaMáquina de lavar loiça:Sim
PavimentoPiso vinílico:Sim
PavimentoTijoleira:Sim
PavimentoFlutuante:Sim
Edificio
GeraisNº de Frentes :3
GeraisNº de Lugares de Estacionamento:2
Tipo de EmpreendimentoHabitação:Sim
IsolamentoAcústico:Sim
IsolamentoTérmico:Sim
EquipamentoGás canalizado:Sim
EquipamentoTV Cabo:Sim
EquipamentoVideo-Porteiro:Sim
ÁguaCompanhia:Sim
GaragemLocal:Sim
GaragemPortão automático:Sim
GaragemÁgua:Sim
GaragemLuz:Sim
Domótica
GeraisEstores elétricos:Sim
AlarmePré-instalação:Sim
Painel SolarPré-instalado:Sim
Zona
GeraisAuto-Estrada:Sim
GeraisComboio:Sim
GeraisPerto de rio:Sim
GeraisTransportes públicos:Sim
ProximidadeBancos:Sim
ProximidadeBombeiros:Sim
ProximidadeCentros comerciais:Sim
ProximidadeClínicas:Sim
ProximidadeEscolas:Sim
ProximidadeFarmácias:Sim
ProximidadeGinásios:Sim
ProximidadeHospitais:Sim
ProximidadeJardins:Sim
ProximidadeJardins de infância:Sim
ProximidadePadarias:Sim
ProximidadePolícia:Sim
ProximidadePraias:Sim
ProximidadeServiços públicos:Sim
ProximidadeSupermercados:Sim
AcessosAlcatrão:Sim
CentralidadeJunto à cidade:Sim

Este imóvel não tem áreas definidas.

Imóveis
Semelhantes

Moradia
Venda

415.000€

Moradia T3 Térrea Geminada de 3 frentes – Tra...

415.000€

Aveiro / Santa Maria da Feira / Santa Maria da Feira, Travanca, Sanfins e Espargo


Ref: cf0440LT8

Ref: cf0440LT8

101.95 m2

3

2

Sim

Moradia
Venda

415.000€

Moradia T3 Térrea Geminada de 3 frentes – Tra...

415.000€

Aveiro / Santa Maria da Feira / Santa Maria da Feira, Travanca, Sanfins e Espargo


Ref: cf0440LT7

Ref: cf0440LT7

110.1 m2

3

2

Sim

Moradia
Venda
RESERVADA

465.000€

Magnífica Moradia T3 + 1 - Travanca - Stª. Ma...

465.000€

Aveiro / Santa Maria da Feira / Santa Maria da Feira, Travanca, Sanfins e Espargo


Ref: cf0433DIR

Ref: cf0433DIR

226.37 m2

4

4

Sim